Einfamilienhäuser

Vidal

Klebl Hausbau Ansicht Haustyp Vidal

Klebl Hausbau Erdgeschoss Variante 1 Haustyp Vidal

Kelbl Hausbau Erdgeschoss Variante 2 Haustyp Vidal

Klebl Hausbau Obergeschoss Haustyp Vidal

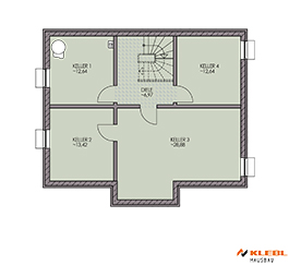
Klebl Hausbau Kellergeschoss Haustyp Vidal